Главная
Новостройки
О компании
Акции
Новости
Контакты
+7 (473) 202-32-33
заказать звонок
Главная
Новостройки
Южный Сити
Выбор секции
Секция 1
Этаж 12
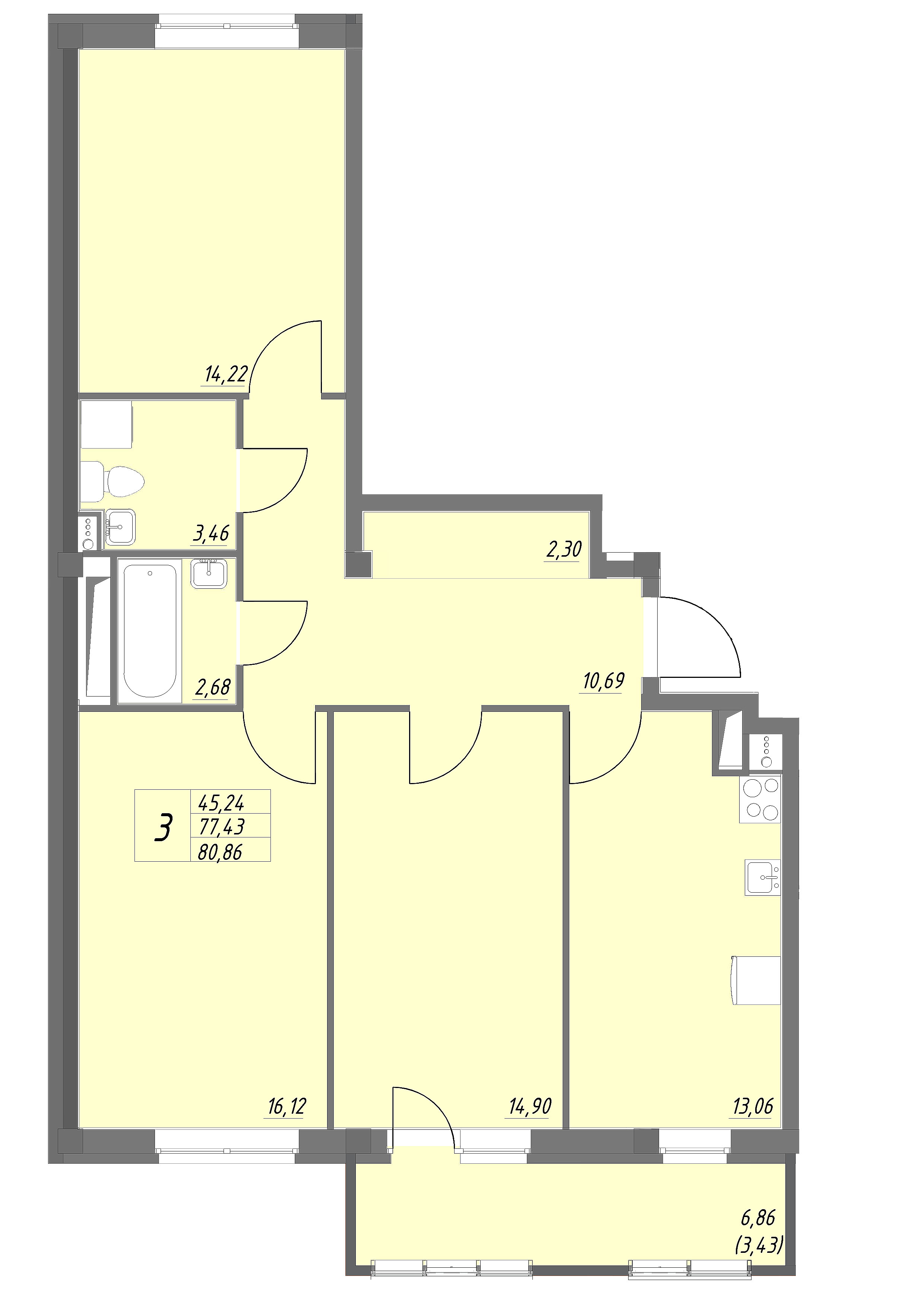
3-х комнатная кв.
3-х комнатная кв.
узнать цену
Этаж
12
номер квартиры
102
Черновая отделка:
стяжка пола
электрика- ввод
от
5 935 399 ₽
Планировка