выбрать этаж
2
4
6
8
10
12
14
16
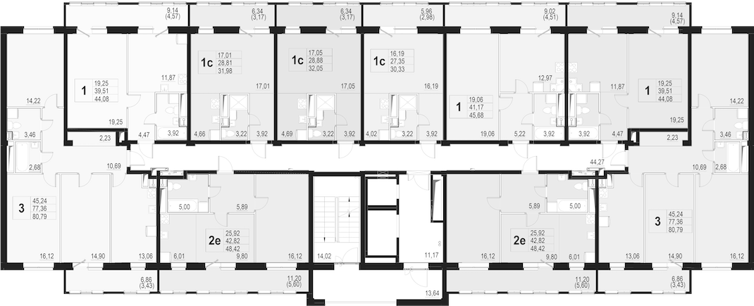
48.42м2
80.79м2
44.08м2
45.68м2
30.33м2
32.05м2
31.98м2
44.08м2
80.79м2
48.42м2
Студии
1 комнатные
2 комнатные
3 комнатные
Офис продаж
Адрес - г. Воронеж, ул. Беговая, 63
График работы:
Пн -пт 09.00-19.00
Сб-вс 10.00-16.00
Вс - выходной
застройщик - ООО СЗ ГК «АБС ЖБИ»