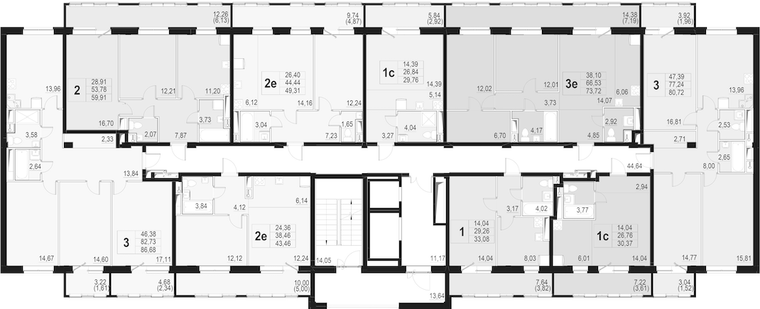
Южный Сити. Секция 2
выбрать этаж
33.08м2
1 комната
продано
80.72м2
3 комнаты
73.72м2
3 комнаты
29.76м2
1C комната
49.31м2
2 комнаты
59.91м2
2 комнаты
86.64м2
3 комнаты
43.46м2
2 комнаты
1-но комнатные
Студии
3-х комнатные
2-х комнатные
Офис продаж
Адрес - г. Воронеж, ул. Беговая, 63
График работы: Пн -пт 09.00-19.00 Сб-вс 10.00-16.00 Вс - выходной
застройщик - ООО СЗ ГК «АБС ЖБИ»