Главная
Новостройки
О компании
Акции
Новости
Контакты
+7 (473) 202-32-33
заказать звонок
Главная
Новостройки
Южный Сити
Выбор секции
Секция 2
Этаж 14
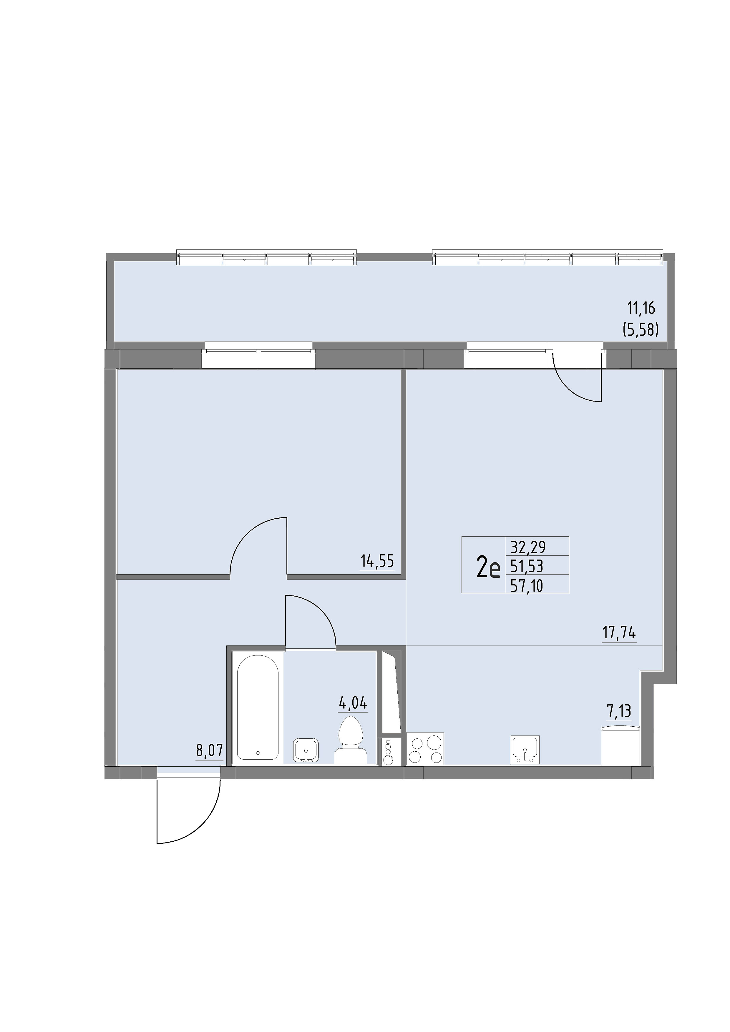
2-х комнатная евро кв.
2-х комнатная евро кв.
узнать цену
Этаж
14
номер квартиры
261
Черновая отделка:
стяжка пола
электрика- ввод
от
4 426 221 ₽
Планировка