Южный Сити. Секция 2
выбрать этаж
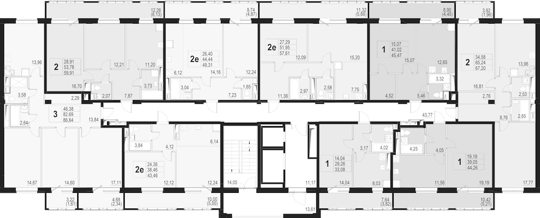
33.08м2
1 комната
44.26м2
1 комната
67.2м2
2 комнаты
45.47м2
1 комната
57.61м2
2 комнаты
49.31м2
2 комнаты
86.64м2
3 комнаты
43.46м2
2 комнаты
1-но комнатные
2-х комнатные
3-х комнатные
Офис продаж
Адрес - г. Воронеж, ул. Беговая, 63
График работы: Пн -пт 09.00-19.00 Сб-вс 10.00-16.00 Вс - выходной
застройщик - ООО СЗ ГК «АБС ЖБИ»